
LAS VEGAS (KLAS) — Clark County announced on Thursday the launch of a program meant to help first-time buyers land an affordable home. The Community Land Trust, or CLT, will build 240 homes.
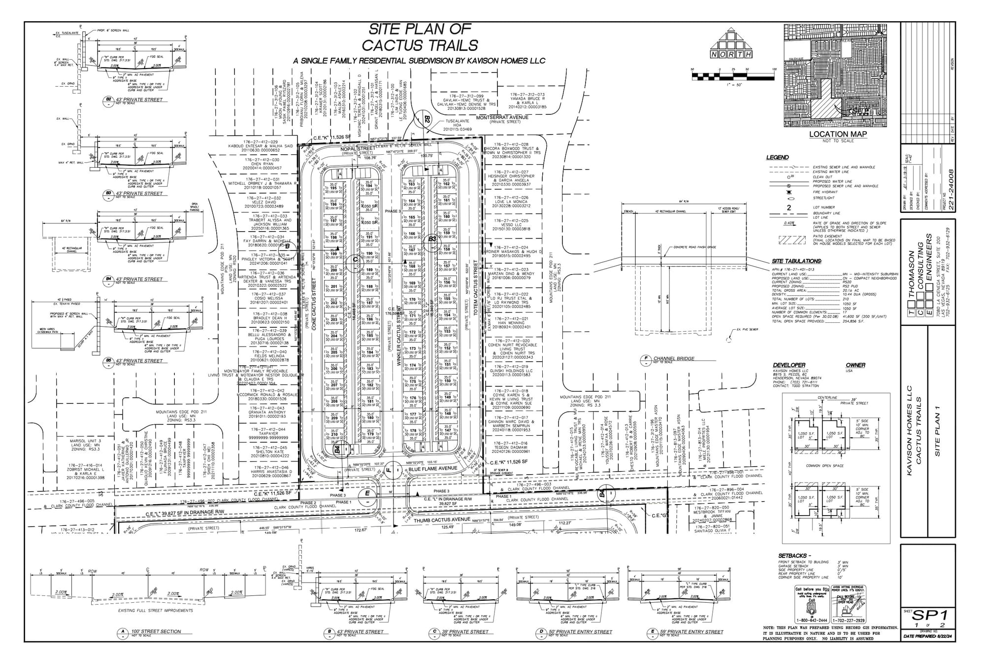
Read MoreLAS VEGAS (KLAS) — Las Vegas residents packed a community center room to oppose the addition of over 200 affordable housing units in their neighborhood, but the developer wants the community to see the requirements to move in.Following a heated neighborhood meeting, Mountain’s Edge neighbors attended an Enterprise Township Advisory Board meeting at the Silverado Ranch Community Center to oppose 210 single-family homes for first-time homebuyers earning about $70,000 a year, according to the Bureau of Land Management (BLM).The board voted to deny approval for all four items pertaining to Cactus Trails. The project is on the first parcel highlighted when the plan was announced on July 16. It covers 20 acres along Cactus Avenue in the southwest valley. Officials said in social media posts that Clark County will maintain ownership of the land, another factor in keeping the price lower.
Read MoreAs part of the Welcome Home initiative, Clark County is establishing the first subdivision-scale Community Land Trust (CLT) in Nevada. This effort will create affordable homeownership opportunities for working households earning at or below the median income in Las Vegas who are currently priced out of the housing market.
Read MoreLAS VEGAS (KSNV) — A proposed affordable housing complex is continuing to raise concerns among several residents in the Mountain's Edge area who’ve started an online petition, which has now gained more than 3,575 signatures from locals against the development.
Read More